Haus K. in Leipzig

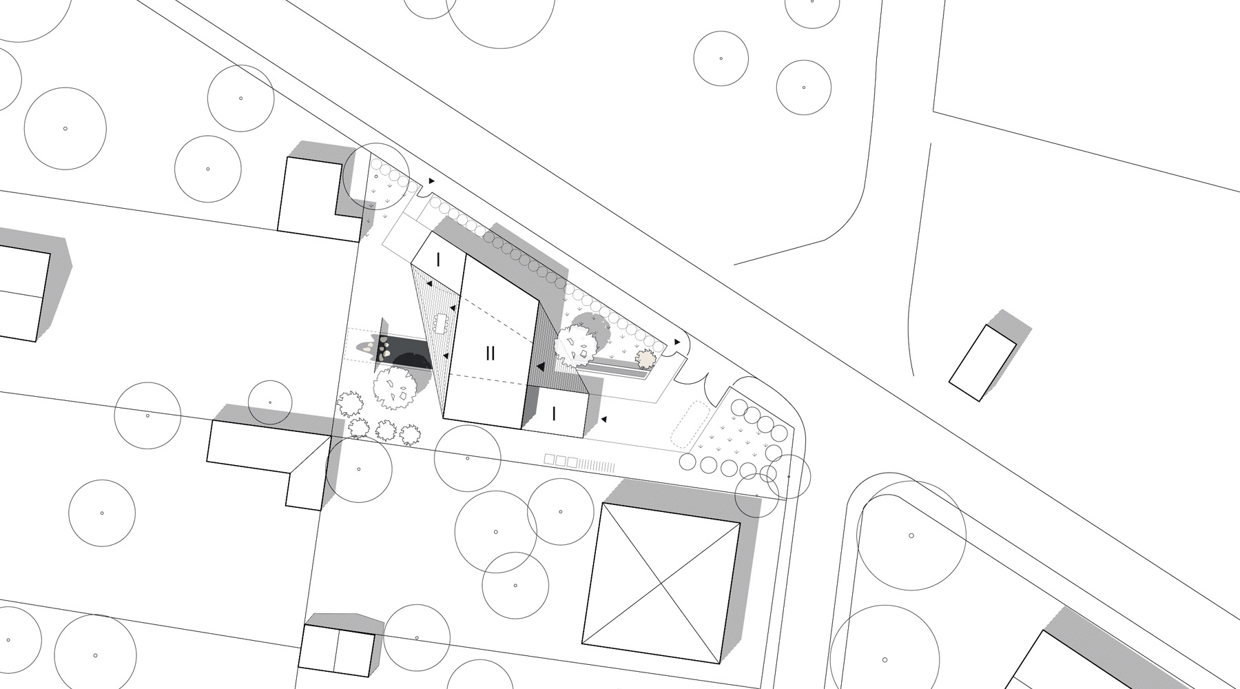
Auf einem schmalen dreieckigen Grundstück einer heterogen gewachsenen Einfamilienhaussiedlung zwischen dem Stadtrand von Leipzig und der freien Landschaft formen sich 3 Baukörper zu einer kleinen Villa. Die Funktionsbausteine für Arbeiten, Schlafen und Service + Garage wurden dabei jeweils parallel zu den Grundstücksgrenzen um einen zentralen offenen Wohnraum gestapelt, so dass die übrige Freifläche des Baufeldes sinnvolle und gute Außenräume ergaben: Ein Vorplatz mit Einfahrt nach Osten, zum offenen Feld und ein geschützter Gartenbereich nach Westen, zu den umliegenden Gärten. Im Grunde geht es dabei darum, diesem Ort am Vorstadtrand über die Form eine Erinnerung an Exklusivität und Beständigkeit abzugewinnen.

Projektdaten

Code
HKK
Status
Bauten
LP
1 — 8
Datum
2010 — 2013
Ort
Leipzig OT Liebertwolkwitz
Bauherr
privat
Fotograf
Steffen Junghans
NF
190 qm
WF
155 qm
BGF
235 qm
BGI
793 cbm

Mitwirkende

  • Stefan Blässe
  • Robert Laser
  • Claudia Haak
  • Georg Blüthner

Downloads

Fragen zum Projekt?

Robert Laser
laser@bla-architekten.com
+49 (0) 341 – 529 171 79

Bautagebuch

23.04.2012

Baubeginn

31.07.2012

Richtfest

30.03.2013

Einzug

Publikationen

2016
Best of Houzz Award 2016
bla° wurde in der Kategorie „Design“ der „Best of Houzz … mehr
2014
Jung
Eigenheim auf kleinstem Grund Die Geschichte beginnt am Stadtrand von … mehr